Pasar al contenido principal

Convento de Agustinas Calzadas de la Purísima Concepción (Gaitanas)

El convento de Agustinas Calzadas de la Purísima Concepción se originó a mediados del siglo XV como beaterio, fundado por Dª Guiomar de Meneses, mujer de Lope Gaitán (de aquí el nombre con el que se las conoce: " Las Gaitanas”). Después, en el primer tercio del siglo XVII (1627), a consecuencia de una bula papal de Urbano III, las beatas Gaitanas formaron el convento de agustinas, beneficiándose de la ayuda de unos nuevos patronos, Diego de la Palma Hurtado y su mujer Dª María de la Palma, quienes hicieron de la nueva iglesia conventual la capilla funeraria de ambos, convirtiendose desde entonces en el Convento de Monjas Agustinas Calzadas de la Purísima Concepción, situado en la plaza de San Vicente.

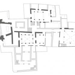
El convento actual se articula en torno a tres patios que actúan como elementos distribuidores, constando de una serie de dependencias yuxtapuestas concebidas para la vida de sus moradoras. Corresponde básicamente a adaptaciones hechas hacia mediados del siglo XVIII, contando con algunas instalaciones anteriores.

La iglesia comienza a edificarse en 1646 por el alarife Diego de Benavides con trazas de fray Lorenzo de San Nicolás y en 1656 se decidió simplificar las trazas de la misma y se incorporó al proyecto Juan de Herrera. Consta de una sola nave, rectangular y dividida en cuatro tramos, con presbiterio en forma de trapecio y coro alto a los pies. La nave se cubre con bóveda de cañón con lunetos y la capilla mayor queda cubierta con una bóveda de cuarto de esfera u horno avenerada. Esta nave está jalonada por pilastras toscanas sosteniendo un entablamento, cuyo friso presenta triglifos y metopas.

Presenta una fachada realizada en mampuesto y ladrillo, de extrema sencillez, compuesta por tres cuerpos que descansan sobre un alto zócalo. Forman parte de esa fachada los escalones de la puerta de entrada, la puerta de acceso al templo adintelada y realizada en piedra, una ventana tanto en el primer y como en el segundo cuerpo situadas en el eje de la fachada y cuatro ventanas más, cubiertas con celosias de clausura, en el último cuerpo. Todo el conjunto se remata con una cornisa.

Información
  • Provincia y localidad
    • TOLEDO
    • TOLEDO (capital)
  • Categoría
    MONUMENTO
  • Fecha DOCM
    19/12/1998
  • Figura de protección
    Bien de Interés Cultural (BIC)
  • Adscripción cultural
    Edad Moderna
  • Tipo
    BIEN INMUEBLE
  • Periodo
    S. XVII
DOCUMENTOS PARA DESCARGAR
DOCM DECLARACIÓN.pdf

Convento de Agustinas Calzadas de la Purísima Concepción (Gaitanas)

Convento de Agustinas Calzadas de la Purísima Concepción (Gaitanas)