Pasar al contenido principal

Iglesia del Salvador de Cifuentes

La iglesia parroquial del Salvador, en Cifuentes es un ejemplo de arquitectura religiosa en el que se aúnan diversos estilos. Su primitiva construcción se adscribe al románico de transición del siglo XIII; a los siglos XIV y XV corresponde la construcción de las naves y el ábside, que ya siguen las pautas propias del gótico. A lo largo de los siglos XVI y XVII se añadieron una serie de capillas y otros detalles renacentistas después de que la iglesia sufriera un incendio.

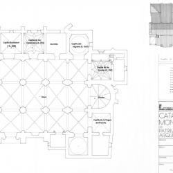
Se trata de una iglesia de planta basilical con tres naves orientadas de este a oeste, siendo más ancha y alta la central; esta nave se encuentra provista de un ábside de planta poligonal; las naves laterales, por su parte, estuvieron en origen rematadas por absidiolos poligonales que fueron sustituidos en el siglo XVI por nuevas capillas de cabecera plana. Tres capillas más, así como la sacristía, se abren en el muro norte y otra del siglo XVII en el meridional.

A los pies del templo se encuentra el coro, situado en alto y a continuación, ocupando el ángulo de la nave de la epístola con la portada del oeste, se halla una torre de planta cuadrada.
Ya en el interior, las naves se hallan divididas en cinco tramos por arcos apuntados, sostenidos por cuatro pilares cilíndricos de estilo románico a cada lado, decorados con columnillas adosadas y el arco triunfal de acceso al presbiterio se halla decorado en su paramento por un pequeño rosetón gótico.

El ábside alberga la Capilla Mayor, y está provisto de contrafuertes en los ángulos; sus paños están rasgados por altos y estrechos ventanales ligeramente apuntados que conservan dos líneas de molduras en cenefa de punta de diamante. La cubierta del ábside es de bóveda de casquete de esfera con nervios que apoyan sobre columnillas adosadas las cuales, a su vez, descansan sobre elegantes repisas a un tercio de la altura total.

De las capillas situadas a los lados del ábside, la del fondo del evangelio, está cubierta por bóveda de crucería compuesta, la del lado de la epístola es barroca y presenta cubierta de bóveda de arista vaída. De las dos capillas adosadas a la nave de la epístola, una es de estilo barroco y está cubierta con cúpula vaída sobre pechinas. La otra es de estilo renacentista y se cubre con bóveda de cañón vaída con casetones.

En la nave del evangelio se encuentra la capilla del Sagrario, con cúpula semiesférica sobre pechinas, la sacristía y la capilla de los Calderones o de San Vicente Ferrer, con bóveda de crucería compuesta.

En el tramo anterior al coro se halla la capilla Bautismal que data del siglo XIII y está circundada por sencillos arcosolios apuntados.

El coro ocupa el ancho de la nave central, a él se accede por una escalinata renacentista y está sostenido por fuertes pilares con arcos escarzanos en sus lados mayores y de medio punto en los menores. Le proporciona luz el rosetón gótico de la portada de Santiago.

La entrada a la iglesia se efectúa por la nave de la epístola y está provista de un cortaviento en su interior.

Todo el interior se encuentra enlucido y provisto de pavimentación a base de entarimado de madera de pino.

En el exterior el material empleado es sillería de piedra y mampostería. Las cubiertas son de teja árabe, a dos aguas en la nave central, a una sola vertiente en las laterales y, a tres en las capillas anejas al ábside.

La portada principal actual, orientada al mediodía, guarda aún la estética renacentista pese a estar construida en el siglo XVII. Consta de un arco de medio punto enmarcado por columnas acanaladas de orden toscano y frontón clásico con hornacina.

La portada de Santiago es la parte más notable del conjunto; a pesar de erigirse en plena época ojival, fue concebida en estilo románico, si bien la profusa decoración es gótica en su totalidad. Está situada en la fachada de poniente, bajo un breve tejadillo sobre ménsulas dentadas. Consta de un gran arco de medio punto, con una serie de estas arquivoltas en degradación que penetran en el muro. Éstas se apoyan en impostas y serie de capiteles, seis por lado, más las dos jambas y todo ello carga, a su vez, sobre una serie de columnas cilíndricas adosadas sobre pequeños pedestales.

Sobre esta portada se encuentra el magnífico rosetón gótico, cuyos radios forman columnas bizantinas y arquillos góticos.

En el ángulo derecho del rosetón se adosó en el siglo XV una torre castillera coronada por un saliente de cornisa con matacanes; actualmente está rematada en sus ángulos por pirámides con bolas.

Una pequeña espadaña, con campana, se yergue sobre el arco triunfal.

Información
  • Provincia y localidad
    • GUADALAJARA
    • CIFUENTES
  • Categoría
    MONUMENTO
  • Fecha DOCM
    30/10/1991
  • Figura de protección
    Bien de Interés Cultural (BIC)
  • Adscripción cultural
    Edad Media - Edad Moderna
  • Tipo
    BIEN INMUEBLE
  • Periodo
    S. XIII - S. XVII
DOCUMENTOS PARA DESCARGAR
DOCM DECLARACIÓN
GALERÍA DE IMÁGENES

Iglesia del Salvador de Cifuentes

Iglesia del Salvador de Cifuentes